聚落校园

东营市第一中学新校区设计
撰文:孙新峰

一、最初印象
2014年11月下旬的某天下午,我们接到了一个陌生来电,问我们是否有兴趣参加一个中学项目的投标任务(15天交标、40轨17万㎡高中项目),来电对项目情况作了一个简要的介绍,基于对方开诚布公的好感以及对因项目挑战性而激发的斗志,在接到来电的第二天,我们设计团队一行三人便匆匆赶到了千里之外的海滨城市---东营,原因很简单:时间紧。
东营,是一座为石油而生的城市,崭新的城市,工整的规划加上丰富的土地资源,造就了城市空旷、水平的气质。在没有一般城市的杂乱的同时,似乎也缺少了一点活力、一丝意外。
顺着东三路,驱车北行15分钟后,我们被告知到了学校的基地,初冬的明媚阳光、瑟瑟寒风和现状的空旷景象让人产生了一丝城市存在的不真实感觉。远离了一切城市气息,东面巨大的人工湖(金湖)宁静而萧瑟。基地内一片平坦的芦苇随风摆动,单纯的令人震撼,只有基地周边石油钻机和远处低矮的平房还展示着人工痕迹的存在,在一片自然景象中,人显得十分渺小,这就是东营一中基地的最初印象。

二、15天的思考和奋斗
现场城市气息的一片空白造就了设计的无限可能。没有限制也造就了设计的源动力苍白,但同时也使设计真正回归到项目自身的需求上来。在返程的高铁上,窗外疾驰而过的山丘、河流、村庄、农田是那么和谐、自然的生长、更新、融合。就在那一刹,我们似乎找到了解决问题的办法,聚落的概念在脑中渐渐成形了。
与大学不同,高中教育更强调理性(逻辑)和诗性(变化)的结合,没有理性就没有控制力,但缺乏诗性,也就丧失了创造力。而作为载体的建筑和建筑围合而成的空间应能体现这样的需求,营造一个丰富多变、而结构又清晰合理的学习的乐园是我们设计的基本想法。
对于一般城市新区和以聚落为代表的集群形态,就人的尺度而言,后者拥有主宰外部空间的能力,人们并不是从凝视式或鸟瞰建筑的方式来体验群体空间,空间只有通过连续的移动才能被感知,而这也正是聚落的最大魅力,而且这种模式还具有生成不同变化形式的能力,这是一种强烈的可适应性,系统是从最小的组织结构获取最大的效率和灵活性,从而达到一种动态的平衡。这就是我们处理东营市一中的空间策略,一种基于内部的要求,以一定方式自然生长的群组体系,是一种理性和诗性的结合。

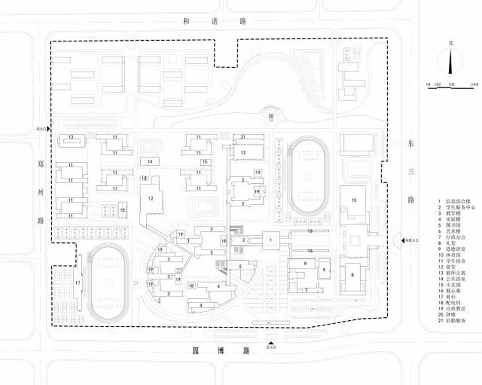
功能布局
在明确了布局模式后,设计真正回归到以学生为中心的主题上,根据对以往完成的高中项目后期的数据分析研究来看,高中生的行为模式是非常简单的,学习占据了大部分时间,自由活动时间主要集中在午饭和晚餐后,主要的活动区域就是教室、食堂、运动场和宿舍,因此这四者之间的二个三角关系非常主要,即教室、食堂、宿舍和教室、运动场宿舍。我们以最高效便捷的方式处理这两个关系,希望以此来节约交通成本,留出更多的时间给学生进行交流、活动。四者围绕着一个开放的水体空间布置以获得良好的景观环境,教室、食堂、宿舍滨水布置。体育馆、礼堂考虑到社会共享,临东三路布置,实验区结合教学区布置,以获得最便捷的联系。
统一秩序和不均质性
在功能分区完成后,是建筑群体的建筑化过程,基于我们的设计理念,我们选择的是一种富有活力和适应性的集群设计,而放弃了一般学校的图案化设计倾向,功能块以最便捷的直线方式作为联系,这是整个学校的内在秩序,而每个功能块以聚落模式组合,分为不同的次级组团,空间也因此表现得多样而富有意外,这种空间的不均质性是激发空间活力的基础,也是激发学生创造性的载体。
水体的引入
东营是一个滨海城市,有充足的水源。“S”型的水体引入进一步将自然元素引入建筑群,水体不仅起到了景观作用,也有效的担当起了围墙的功能。
中心的确立和两条轴线
在以活力自由为特点的空间体系内,以图书馆、办公楼为主体的中心确立是获得理性平衡的重要手段。明确的中心使得整个校园有了清晰的标志。校园的两条控制轴线亦交汇在此。轴线的存在使得建筑群在局部获得了高度的理性。
两种空间表情
以两条轴线为基础的两个入口序列体现着完全不同的空间表情。南北轴线是学校的主入口序列,以一种不对称的均衡方式组合。空间活跃而匀称;东西轴线是学校的礼仪入口序列,布置得高度理性,以递进的院落强调空间的仪式感。空间在校园文化展廊处达到高潮。
三、调整的弹性过程和校中校概念的形成
在方案深化综合各方意见的过程中,有人提出:这么大规模的中学(6000学生),将教学区集中在一个组团内,对局部区域交通是否会造成压力?我们通过对教学区瞬时人流的计算分析,以及对道路、广场集散而积指标的计算后,对原教学组团进行重新调整,提出了“校中校”的概念,即将高三年级教学楼和与之相配套的食堂、宿舍、运动场组合在一起,形成一个独立组团设置在高一高二教学组团北侧,而这些调整正是基于聚落模式这种弹性可变系统来实现的。


四、效果控制和建造花絮
水平是我们对东营的第一印象。整个校园以水平向挑板和横向走廊作为立面的主要特征。底层的基座处理在追求建筑整体统一性的同时,也给纯现代的建筑带来一些古典的意味。在实际施工中,为追求进度,将校区分成几个标段,由各标段按设计要求自行采购装饰材料的方式给整体控制带来很大的麻烦。
设计之初,为寻求个体的差异性,避免过于统一带来的沉闷感,我们将基座面砖采用六种相近的砖红色面砖两两组合,形成三种略带差异的肌理效果,分区域分组团铺贴。


实际施工中,由于分标段之后,单种颜色的面砖采购量达不到颜色定制的量,只能由各标段按标准色卡去自行采购,实际颜色与设计提供的差异较大,而工程进度又特别紧张,最后导致未经设计最终确认的很多面砖已运抵工地。在追求效果还要确保进度的两难选择中,设计作了最大的妥协。最终我们利用现有的面砖重新进行配比,基本摒弃了原先设想的双色无序配比,而改用单色平铺,仅将底边及腰线作了深浅配比,最终呈现的效果只能说是差强人意。
在立面涂料的选择上,在综合东营冬季扬尘较大的特点以及北方冬季相对萧条的景象,我们舍弃了原方案外墙白色弹性涂料的方案,而选择了相对耐脏、中性偏暖的外墙真石漆。我们对外立面进行了细格化划分处理,以遮掩因施工不到位或真石漆色差引起的感观效果。












五、感想
相对于城市中心越来越紧张的学校用地,许多移址新建的中学规模却愈见庞大,有些用地甚至达到500亩以上,已突破传统意义上中学的概念。我们觉得效率和活力应该是这类学校需要重点考虑的问题。毕竟现有体制下,中学生的学习任务是很重的,没有必要把大量的时间浪费在赶路上。便捷顺畅的交通,使学生能在最短的路径上行走,而结合学生行走的路径布置适合学生学习、交流、嬉戏的场所和空间,更有利于激发活力和潜能,从而激发创造力,这也体现了现代教育的目的。这就是设计的价值。


