
江阴市第一初级中学(以下简称一中)前身是由美国基督教长老会于1907年创立的励实学堂,“励实”也成为校训沿用至今。而学校的标志性建筑是1910年由美国建筑师规划设计的“春晖楼”,虽然由于历史的原因,学校建筑几经重建,原先的春晖楼已不复存在,但我们依旧能从校史档案的老照片上寻觅到其昔日的风采。
一中新校区位于江苏省江阴市东大门,校区南侧是徐霞客雕像城市绿地,北侧是江阴市第二中学,基地东、西两侧处于澄张快速路和黄山路两条城市主干道形成的夹角间,周边交通压力非常大。


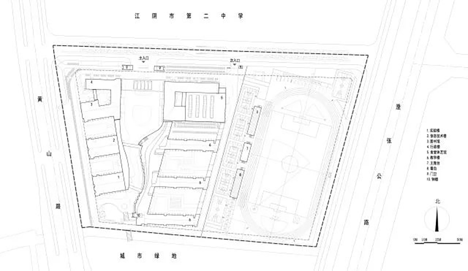
1春晖楼的历史记忆 2校园全景 3总平面图

业主:江苏省江阴市教育局
建设地点:江苏省江阴市
建筑设计:江苏中锐华东建筑设计研究院有限公司
项目负责人:荣朝晖
设计团队:孙新峰、王雪丰、刘虎、缪家栋
建筑面积:52 690m2(地上42 980m2,地下9 710m2)
设计时间:2014.11
建成时间:2017.08
摄影:




建筑作为文化的载体,完全抛开历史是不可取的,尤其是对于一所百年老校。
在一个全新的城市背景下继承历史,应当是吸取而非还原,我们追求的不是一个毫无生气的假面布景。通过类型学原理,我们把春晖楼的形象抽象出基本元素在新校区设计中使用,也沿用了春晖楼质朴经典的外墙材料,这与二中的建筑材质也是统一的。在抽象处理历史传承的前提下,在几个关键入口重新还原春晖楼的空间感觉。关键节点的复原使新建筑在继承老建筑灵魂的同时,也拥有了一把打开通向历史大门的钥匙。



4翠谷鸟瞰 5首层平面图 6二、三层平面图
7主入口 8入口广场 9教学楼
在教育压力越来越重的今天,学校建筑要面向未来一定要体现出人文精神。人是空间活动的主体,在紧张的学习之余,利用大、小课间有限的活动时间,给学生就近提供一个活动和交流的场所是我们设计的重点。由于活动时间十分有限,不能让学生把仅有的时间过多地浪费在交通上。将教学楼走廊拓宽兼作活动场所的传统做法实际并不可行,教学楼走廊是主要的疏散通道,即便拓宽也很难避免行走流线与活动空间的相互干扰,而且过宽的走廊也不利于教室的采光;如果将活动场地置于地面,对于二层以上的学生又略显“遥远”,高效、自由的课间活动也只能停留在字面上。
考虑再三,我们将教学楼西侧连廊拓宽,并采用层层退台的方式在每层形成架空露台,为学生的全天候活动提供可能,活动平台与普通教室之间通过教师办公区分隔,实现动静分离。结合活动空间布置卫生间、饮水处、拖把池等设施,方便学生课间就近休息、活动。活动平台在底层放大,配置了辅导室、休息展示厅、非机动车停放点等配套辅助用房,并在每幢教学楼入口处设置年级入口门厅。层层退台与西侧辅助教学区的纵向连廊通过天桥串联成一个整体,方便建筑间相互联系,增加了空间的多样性和趣味性。
层层退台在空间上形成一个谷地空间,垂直绿化与谷地进一步丰富了校园景观。至此引出了设计的核心思想——建造一个人性化、生态的书香翠谷,创造一个开放、积极的学习乐园。







10翠谷回望 11二层活动平台 12三层活动平台
13活动平台与教室走廊 14实验楼 15剖面图
16食堂体艺楼与活动平台
在最早的设计方案中,我们曾考虑外墙采用暗红色陶土劈开砖来向春晖楼致敬,同时呼应北侧二中的色彩。但由于外墙保温做法不成熟以及江苏省对外墙面砖有较严格的限制要求等原因,最终选择了相对更安全的仿面砖外墙真石漆。但在主入口广场两侧的食堂、体育馆和行政图书楼的门头处理上,我们坚持采用红砖砌筑打磨的方式来还原历史记忆,因此也与施工方进行“拉锯战”,最终的完成效果令人满意,也给了我们坚持下去的信心。
作为建筑的第五立面,我们希望屋顶是立面的延续,传统坡屋面是以瓦来覆盖的,这显然难以达到预想的效果。采用120mm×240mm×60mm规格的红色水泥砖作为屋面饰面材料,规格和色彩上与外墙材料基本一致,水泥砖采用平铺和侧立砌筑的方式形成纵向肌理,在增加细节的同时也便于屋面排水。我们希望在不久的将来,随风飘来的植物种子会在砖缝中生根、发芽,在孕育新生命的同时也让建筑获得了自己的生命。




17活动平台西立面 18-19教学庭院二 20食堂体艺馆
三月初春,万物生长,我们再次来到校园。退台外沿的花坛中迎春花已冒出嫩芽,由于栽种时间不长,枝条还未倒挂,相信假以时日,校园定会生机勃勃。
随着下课铃声响起,原本平静的校园一下子热闹起来,学生纷纷走出教室,聚集到活动平台上聊天、嬉戏、饮水……每层平台上都有不少孩子在活动,整个空间洋溢着欢快轻松的气氛。在设计过程中,这幅画面曾在我脑海中浮现过多次,当真实的场景出现在眼前时,内心的激动久久不能平息。当铃声再次响起,孩子们快步返回教室,喧闹的校园又重归平静。
我们询问了新校区运行一个学期后师生的感受,陪同老师非常自豪:“这个空间非常好,雨天学生们可以在廊下活动,天气晴朗时又可以到露台上活动。现在气温还比较冷,待到天气回暖,会有更多的孩子走出教室,到时平台上会到处是欢声笑语,学生们还是非常喜欢这种自由的空间。”前一阵子学校开学综合调研,无锡市教育局相关领导看到这个场景,惊叹到:“想不到江阴居然有这么好的一所新校,外观低调,内部却如此有活力。”
建筑外部以严谨内敛的建筑表情来呼应学校的百年底蕴,而建筑内部是一个形式自由、空间丰富、生机盎然的活力空间,而这正是我们设计的指导思想。在三月明媚的午后,孩子们穿过教学楼走廊,汇聚到中央平台,或交流,或阅读,或嬉戏,热闹非凡。谷中枝条吐绿、花开缤纷,空间与绿意结伴,人与自然同行。孩子们在天桥穿梭,沿着台阶下到谷底,蜿蜒向前,经过钟楼,走过小桥,去感受尽头的一片水杉林。
建筑不只是简单地解决“功能”、“形式”这类基本问题,建筑师必须承担起更重要的社会责任。基于现行中小学规范的局限性,完全理想化、激进式的西化教学模式并不完全适合中国当下的教育体制。同样,与西化教学模式相对应的教室布局也很难满足现行规范要求。
我们不是规范的制定者,也不可能组织相关专家论证以获得形式上的通行证。建筑师要根植于当下的教改进程,顺势而行,在现有规则允许的范围内进行适度的前瞻性研究,在满足规范和正常教学的前提下,为学生提供个性发展的空间,为学习和生活提供更多的可能,适应时下的教学模式,创造出被更多人接受的学校建筑。